Our Academy, Our Future: Building St. Anne’s for Generations

34 donors
0% complete

$54,705 raised of 

Our Academy, Our Future: Building St. Anne’s for Generations

Donation protected
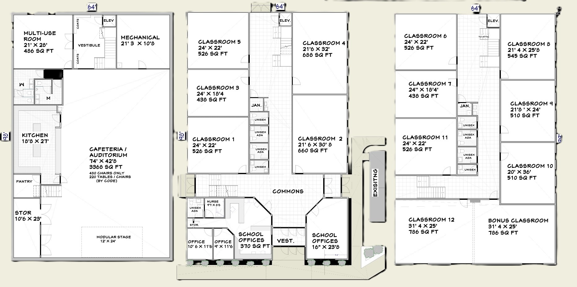
St. Anne’s Academy is a small but growing private school located in White Bear Lake, Minnesota. For over 38 years, our school has been dedicated to providing an exceptional education grounded in intellectual development, the building of character, and moral integrity.

As our student body continues to grow, we are facing a wonderful but pressing challenge: our current facility no longer meets the needs of our students and teachers. Our classrooms are full, and our space no longer can provide for our enrollment needs. Unfortunately, at this point, we are unable to accept any new students, unless we receive the much-needed assistance that we are seeking.

Your support would help us create a lasting impact—ensuring that children in our community have access to an inspiring and safe place to learn for generations to come. Would you consider making a contribution toward our building fund?

For more information, visit our website!

Follow us on Instagram and Facebook!


Organizer

Harriet Fredericks
Organizer
St. Paul, MN
  • Education
  • Donation protected

Your easy, powerful, and trusted home for help

  • Easy

    Donate quickly and easily

  • Powerful

    Send help right to the people and causes you care about

  • Trusted

    Your donation is protected by the GoFundMe Giving Guarantee