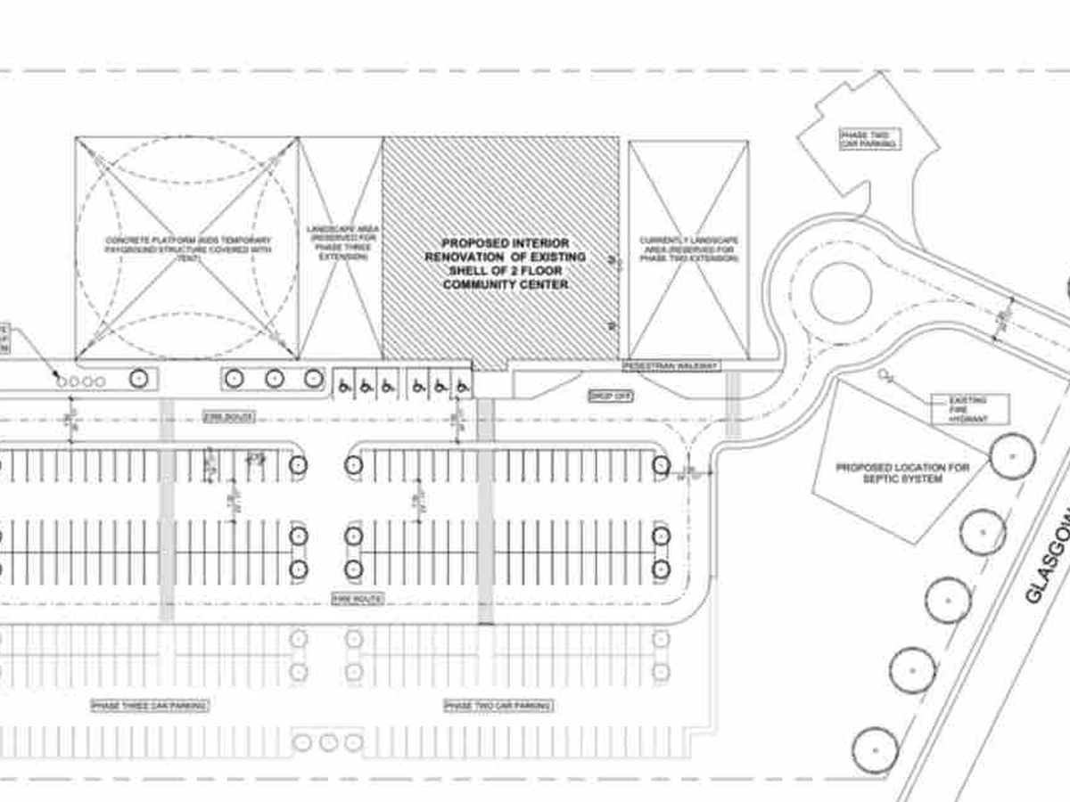
The Kitchener-Waterloo Islamic Association (KWIA) has served as a pillar of unity and strength for the Muslim community in the Kitchener-Waterloo area since 1987. It owns an 11-acre property in the center of the city of Kitchener, where it began an ambitious project to build a masjid, school, and a community center. This land isn’t just a financial asset; it is the cornerstone of our community’s future.
As a registered charitable organization in Canada, KWIA has remained dedicated to meeting the spiritual, educational, and social needs of our community. Over the years, our members' unwavering support has driven every milestone we have achieved. Today, KWIA stands ready to undertake a significant project that addresses our community’s immediate needs while ensuring a lasting legacy for future generations. This project represents not just construction but a testament to our collective faith, dedication, and vision.
School: Our children need an education that aligns with Islamic values, especially in a time when public
school curricula often clash with them.
Masjid: The masjid will serve as the heart of our community. It will not only accommodate our growing number of worshippers but also provide a welcoming environment for non-Muslims. This masjid will open its doors to our neighbors, offering opportunities for Dawah through open houses, interfaith events, and educational programs.
Community Center: This center will offer affordable venues for Nikah and other Islamic events, making it easier for families who may find commercial venues cost-prohibitive.
Every contribution counts! Help strengthen our ummah by supporting your fellow believers in the West. Help invest in the next generation of leaders, future scholars, and torch-bearers in our community of KW. May Allah reward you and increase you in this life and the next for every dollar that you give.
Organizer and beneficiary
Khunsa Ansari
Organizer
Mohammad Abuleil
Beneficiary



