Northeast Philadelphia Islamic Center was established in 2004 where about 10-20 people started praying in the basement of one of our community members. Since then, we had purchased a 2 floor residential house that we have been using as our place of worship since 2005. As more people have moved to the Northeast Philadelphia area from surround states, our community has outgrown this place of worship.
Every Friday, over 500 people gather to pray Jumu’ah in current small Masjid with people overflowing into the driveway and sidewalk. The space is so limited that we are forced to hold two separate Jumu’ah prayer sessions, and many worshippers struggle to find room. Families, elders, and youth all deserve a safe, dignified place to worship together.
We urgently need your help!!
Why This Project Matters:
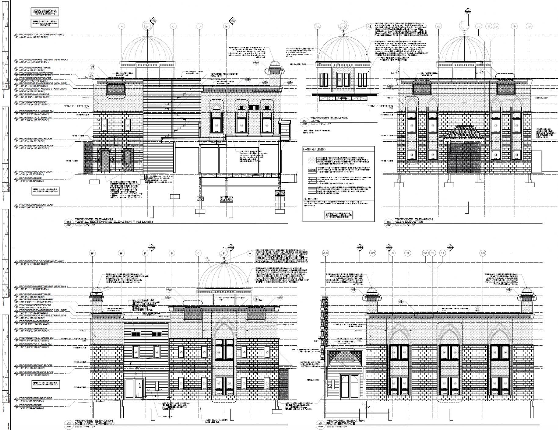
Alhamdulillah, we have purchased the adjacent property to construct a new mosque. We have received zoning and have submitted for building permit. We expect to receive approval within couple of weeks. This new building will allow us to:
• Hold one unified Friday prayer
• Accommodate daily prayers comfortably
• Provide Islamic education for children and adults
• Create a welcoming community center for families and youth
• Serve as a long-term spiritual home for generations to come
Fundraising Goal & Progress:
• Total construction cost: $2.8 million
• Amount raised so far: $525,000
• Amount still needed: $2.3 million
We urgently need $1 million before we can start the phase 1 of the project.
All funds raised will be used exclusively for the construction and completion of the mosque.
How the Funds Will Be Used:
• Site preparation & foundation
• Structural construction (framing, concrete, steel)
• Roofing, exterior walls & insulation
• Plumbing, electrical & HVAC systems
• Interior build-out (prayer hall, classrooms, restrooms)
• Permits, architectural & engineering fees
How You Can Help:
• Donate any amount—every dollar makes a difference
• Share this campaign with family, friends, and your networks
• Make du‘a for the success of this project
The Prophet Muhammad ﷺ said:
“Whoever builds a mosque for the sake of Allah, Allah will build for him a house in Paradise.” (Bukhari & Muslim)
This is an opportunity to be part of a lasting legacy—a place of prayer, learning, unity, and peace in Philadelphia.
Please donate today and help us build a house of worship that will serve thousands for generations to come.
JazakAllahu khairan. May Allah reward you for your generosity.
Organizer
N
Northeast Philadelphia Islamic Center
Beneficiary






