Assalamu Alaikum Dear Brothers & Sisters,
APPEAL FOR MASJID: Masjid-ul-Irfan, 406 Bordesley Green, Birmingham, B9 5NE
The Prophet (SAW) said, “Whoever builds a Masjid desiring thereby Allah’s pleasure, Allah builds for him the like of it in Paradise.” – (Sahih Al Bukhari).
The Masjid is the heart of any Islamic community and stands as the physical representation of our faith. Inside the blessed walls of the Masjid is where we teach our children about Islam and where we come to worship Allah (SWT) on a daily basis.
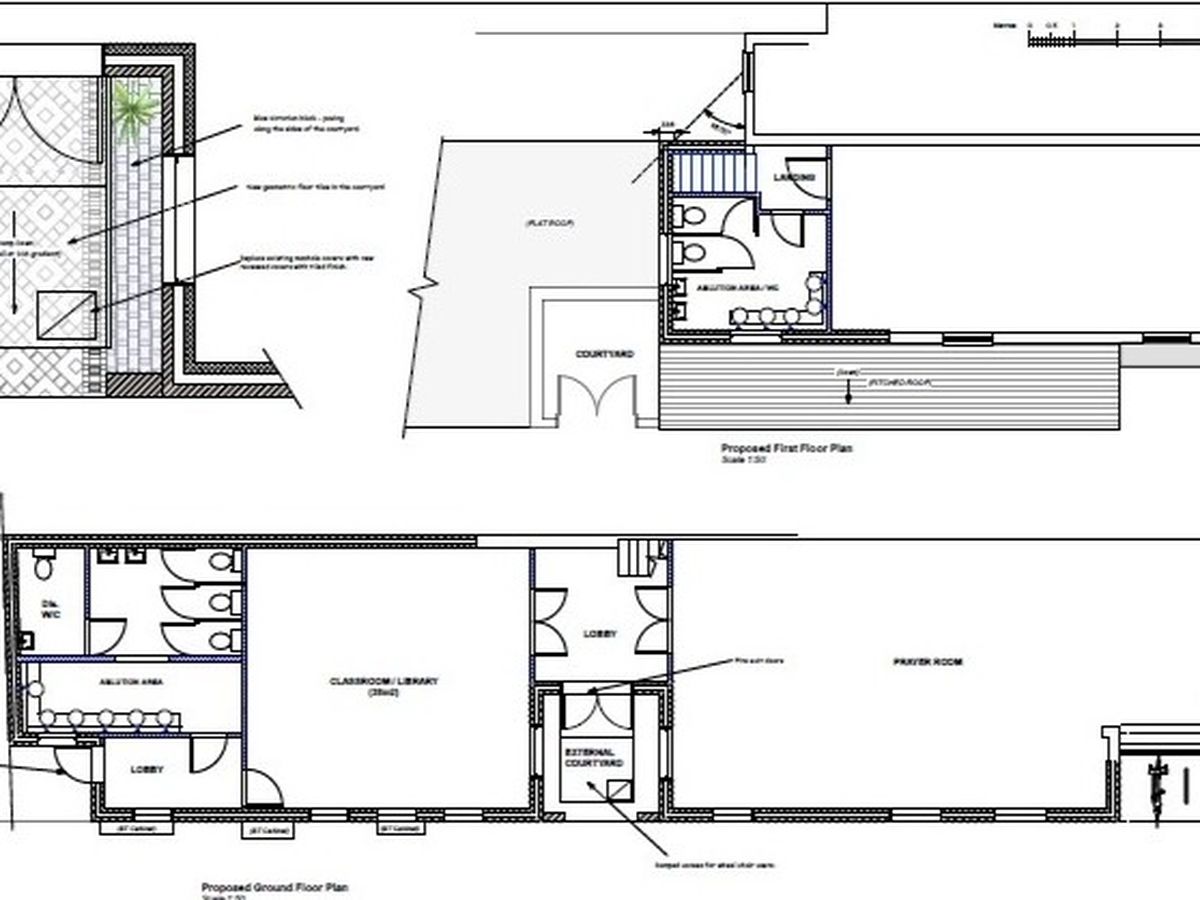
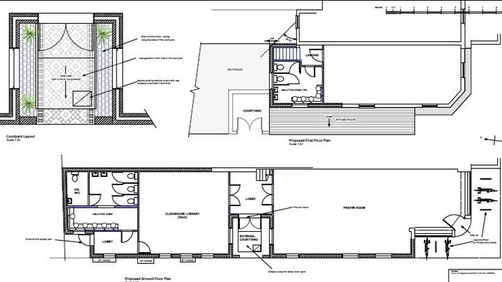
Masjid-ul-Irfan has been serving the local community since 2009. The time has now come when we urgently need to expand our space to cater for the needs of the Community. Alhamdulillah, Birmingham City Council has approved the plans:
http://eplanning.idox.birmingham.gov.uk/publisher/mvc/listDocuments?identifier=Planning&reference=2022/02470/PA
The rewards for spending in the path of Allah are well known. The Prophet (SAW) said, “When a man dies, his deeds come to an end except for three things: Sadaqah Jariyah (continuous charity), knowledge which is beneficial, or a virtuous descendant who prays for him”. – (Sahih Al Muslim).
Building a Masjid is a wonderful act of Sadaqah Jariyah! The rewards will continue as long as people benefit from the Masjid and beyond as well Inshaa Allah.
The estimate for the whole project is £250,000. We are now raising funds for Phase 1 which is estimated to be £110,000. Alhamdulillah, we have raised £45,00 so far and need to raise a further £65,000.
The work has now begun in the blessed month of Ramadhan when rewards are greatly multiplied by Allah. Therefore, we invite all Brothers and Sisters to come forward and build a Palace in Jannah by becoming a part of this Sadaqah Jariyah.
May Allah accept everyone's contribution and make it an immense source of blessings in this world and a means of salvation in the Hereafter.
Request for your generous donations and especially Duas.
Moulana Abdul Awwal Saheb
and Moulana Habibullah.
Organizer
MUAIC LIMITED
Beneficiary

